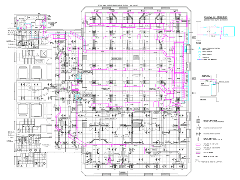
Banelco - Data Center
México 444. Capital Federal
Proyecto de Arq.: Banelco
Adecuación de un edificio existente y su sistema de aire acondicionado. Se destinan tres de los nueve equipos de aire con sus respectivas cajas VAV para el servicio del Centro de Cómputo, quedando los otros seis equipos para confort en la zona de oficinas y funcionando como Back Up de los otros tres.
Capacidad de Refrigeración:
Capacidad
de Calefacción:
Superficie:
1.300 m²
Diveo Diginet

Proyecto de Arq.: Arquitecto Catuara
Sistema de aire acondicionado para NOC y salas de presentación y oficinas administrativas. Sistema con equipos fan-coil centrales e individuales. Sistema de VAV.
Capacidad de Refrigeración:
42TRCapacidad
de Calefacción:
Superficie:
150 m²
Lucent Technologies S.A.

Proyecto de Arq.: Aslan & Ezcurra Arquitectos
Sistema de aire acondicionado para el centro de cómputos con equipos de precisión con condensación por agua. Adaptación del sistema de aire acondicionado para las oficinas.
Capacidad de Refrigeración:
16 TRCapacidad
de Calefacción:
Superficie:
70 m²
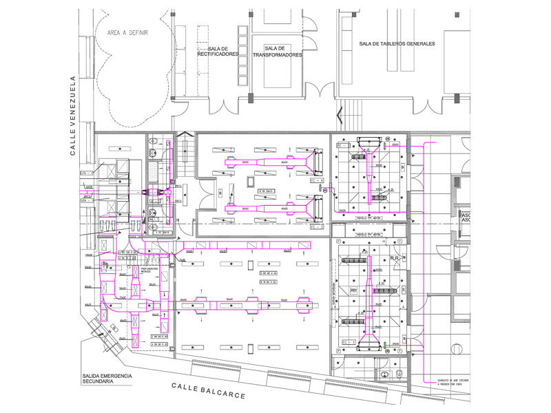
OSDE Parque Patricios - Data Center

Proyecto de Arq.: Estudio Swiecicki
Sistema de aire acondicionado de nivel TIER 3 para el centro de cómputos de la empresa OSDE con equipos tipo CRAC (Computer Room Air Conditioning Units) de expasión directa, con condensadores remotos enfriados por aire.
Capacidad de Refrigeración:
86 TRCapacidad
de Calefacción:
Superficie:
200 m²