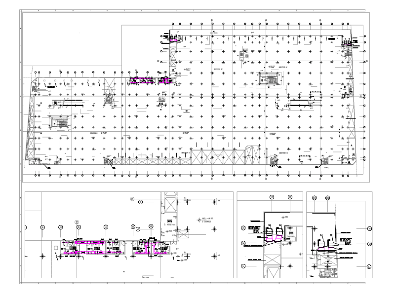
Shopping Buenos Aires Mall
Tortuguitas, Prov. de Buenos Aires
Proyecto de Arq.: Bodas - Miani - Anger Arquitectos
Sistema central de aire acondicionado con equipos tipo Roof-Top para circulaciones, accesos, espacios comunes y patio de comidas. Sistema de Volumen de Refrigerante Variable VRV con bomba de calor para los locales comerciales. Inyección de Aire Exterior para locales comerciales. Ventilaciones mecánicas de locales sanitarios, vestuarios, depósitos y trastiendas. Extracción de cocheras y sala de máquinas del subsuelo.
Capacidad de Refrigeración:
1400 TRCapacidad
de Calefacción:
475.000 Kcal/h
Superficie:
9000 m²
Supermercado Disco
Savoy. Capital Federal.
Proyecto de Arq.: Gonzalez Panal. Arquitecto.
Sistema central de aire acondicionado con equipos tipo Roof-Top y compactos. Ventilaciones mecánicas de depósitos y trastiendas.
Capacidad de Refrigeración:
30 TRCapacidad
de Calefacción:
46.500 Kcal/h
Superficie:
1.300 m²
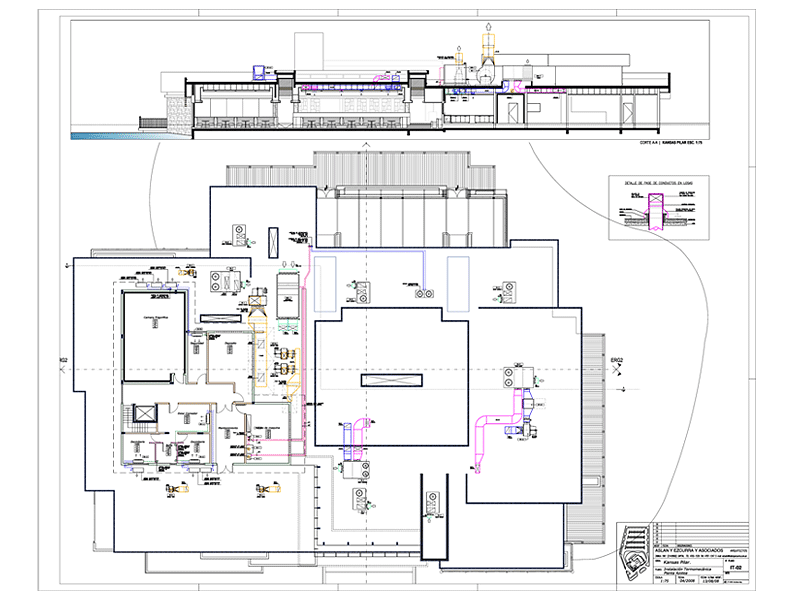
Kansas Pilar
Pilar, Prov. de Buenos Aires
Proyecto de Arq.: Aslan y Ezcurra Arquitectos.
Climatización del salón principal y laterales por medio de Equipos del tipo Roof-Top con calefacción por Gas Natural. La barra secundaria y patio central climatizado por medio de un sistema de Volumen de Refrigerante Variable VRV. Inyección de Aire Exterior en cocina. Ventilaciones mecánicas de cocinas, depósitos y vestuarios.
Capacidad de Refrigeración:
94 TRCapacidad
de Calefacción:
178.000 kcal/h
Superficie:
1.200 m²
Showcenter Haedo
Haedo, Prov. de Buenos Aires
Proyecto de Arq.: Maccarone Emprendimientos S.A.
Centro de compras y esparcimiento con 14 salas de cine. Aire acondicionado frío – calor para espacios públicos y cines con equipos roof-top. Sistema de agua de condensación para locales comerciales y gastronómicos. Proyecto y Dirección de Obra.
Capacidad de Refrigeración:
1700 TRCapacidad
de Calefacción:
Superficie:
9.000 m²
The Home Depot
Aguila
Proyecto de Arq.: Estudio Alberto Fernández Prieto y Asociados.
Sistema todo aire con equipos de frío-calor del tipo Roof-Top. Extracciones y ventilaciones mecánicas. Proyecto y Dirección de Obra.